விடுதலைப்புலிகளின் தலைவர் பிரபாகரனின் பெற்றோரின் நினைவாக வேலுப்பிள்ளை – பார்வதி அம்மாள் நினைவு மணி மண்டபம் அமைக்க நகரசபையில் விண்ணப்பம் கையளித்து 45 நாட்கள் கடந்தும் நகரசபையால் அனுமதி வழங்கப்படவில்லை என ஏற்பாட்டாளர்கள் தரப்பில் குற்றஞ்சாட்டப்பட்டுள்ளது.
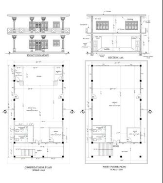
புலம்பெயர்ந்து வசிக்கும் தேசியத் தலைவர் வே.பிரபாகரனின் மூத்த சகோதரி ஜெகதீஸ்வரி மதியாபரணத்தின் சொந்த ஆதனமான ஆலடியில், அவர்களது பெற்றோரான வேலுப்பிள்ளை, பார்வதி அம்மாள் ஆகியோரின் நினைவாக ஒரு மணிமண்டபம் அமைப்பதற்கு கட்டிடம் ஒன்றைக் கட்டுவதற்கான விண்ணப்பம் உரிய ஆவணங்களுடன், அதற்கான கட்டணத்தையும் செலுத்தி நகரசபையில் கடந்த 03.12.2025 ஆம் திகதி கையளிக்கப்பட்டது.
எனினும், இதற்கு எதிராக பொலிஸ்நிலையத்திலும், புலனாய்வுத் துறையிலும் முறைப்பாடு செய்து விசாரணைக்கு அழைக்கப்பட்டனர்.
இந்த மண்டபம் நகரசபைக் கட்டளைச் சட்டதிட்டங்களுக்கு அமைவாகவே தயாரிக்கப்பட்டு அதற்கான விண்ணப்பம் கையளிக்கப்பட்டது.
அதனை நகராட்சி மன்றத்தின் தொழில்நுட்ப அலுவலர், செயலாளர் ஆகியோரினால் சட்டதிட்டங்களுக்கு அமைவாகத் தயாரிக்கப்பட்டுள்ளதா என்பதைச் சரிபார்த்து, அதனை நகர அபிவிருத்தி அதிகார சபைக்கு ஏழு நாட்களுக்குள் அனுப்பி வைக்க வேண்டும்.
இதில் தவறுகள் இருப்பின் மாத்திரம் விண்ணப்பம் அனுப்பியவர்களுக்குக் கடிதம் மூலம் தெரியப்படுத்தினால் அவர்கள் திருத்தி அனுப்பி வைப்பார்கள். அதற்குப் பின்னர் திருத்தப்பட்ட விண்ணப்பப் படிவம், வரைபடம் ஆகியவற்றை நகர அபிவிருத்தி அதிகார சபைக்கு அனுமதிக்காக அனுப்பி வைக்கவேண்டும்.
விண்ணப்பம் கையளிக்கப்பட்டு 21 நாட்களுக்குள் அனுமதி வழங்கியிருக்க வேண்டும். ஆனால் விண்ணப்பம் கையளிக்கப்பட்டு 45 நாட்களுக்கு மேலாகியும் இம் மண்டபத்திற்கான அனுமதி வழங்கப்படவில்லை. இதனால் எதிர்பார்த்த காலத்திற்குள் கட்டிட வேலைகள் ஆரம்பிக்க முடியாதுள்ளதாக சம்பந்தப்பட்ட தரப்பினர் கவலை வெளியிட்டனர்.


















